Situationsplan för ett Attefallshus, såhär skapar du en #
I denna artikel tittar vi på hur en situationsplan för ett Attefallshus kan se ut. Varför en situationsplan kan behövas, och hur Ritabygglov.se kan användas för att skapa en.

Ritabygglov är ett verktyg som låter dig rita enkla bygghandlingar direkt i din webbläsare. Det är enklare att använda än CAD och mer kraftfullt än ritverktyg som inte är anpassade för bygghandlingar.
Vad är en situationsplan #
Situationsplanen är en ritning med en karta som visar den åtgärd du vill göra ovanifrån. Situationsplanen är en av handlingarna som vanligen ingår i ett bygglov. Men den förekommer även i andra sammanhang, exempelvis för den enklare bygganmälan.
Situationsplaner kan se olika ut. Många projekt behöver en situationsplan och vad som ska inkluderas beror på projektets typ. I sverige reglerar kommunerna vad som får byggas och inte. Således är det kommunen som bestämmer vad de vill se på situationsplanen.
Det är viktigt att förstå vad som gäller i just din kommun. Se till att ha god dialog med kommunens handläggare och var lyhörd på dennes kommentarer. Att också ha korrekta och kompletta handlingar från början underlättar framdriften av ditt projekt och undviker kompletteringar och de ledtider som följer därpå.
Behövs en situationsplan för ett Attefallshus? #
Svaret på frågan vilka ritningshandlingar som behövs är tyvärr oftast: det beror på. Idén med friggebodar och attefallshus är att förnkla; i många fall behövs inte bygglov för att upprätta ett attefallshus. Men beroende på om du exempelvis bor inom detaljplanerat område eller om du har grannar nära, så kan du i alla fall behöva en situationsplan. Som alltid, kontakta din kommun för att förstå vad som gäller.
Av andra skäl kan en situationsplan vara bra att ha. Kanske ska du komma överens inom familjen var byggnaden faktiskt ska placeras, kanske vill du vara en god granne och visa de kringboende hur det kommer att bli och hur deras mijlö och utsikt kan komma att påverkas. Situationsplanen är ett grundläggande dokument so har många användningsområden.
Värt att nämna också är att andra ritningar kan behövas. För ett fullt bygglov kan plan- fasad- och även konstruktionsritningar behövas för att visa kommunen hur du har tänkt och få godkännande.
Skapa en situationsplan med Ritabygglov #
För att skapa vår situationsplan behöver vi följande:
- Ett kartunderlag från kommunen
- Ett konto på Ritabygglov.se
Kartunderlag från din kommun #
Välja rätt kartunderlag #
Situationsplanen utgår från kommunens kartunderlag. Här räcker det inte med ett skärmklipp från Google Maps eller Eniro; sådana kartor är inte ämnade för bygghandlingar. Du ska ej heller använda de online-kartor som du kan exportera från Lantmäteriet.
Kommunerna erbjuder olika kartor för byggprojekt. Den mest utförliga kartan kallas nybyggnadskarta. Det är en precis karta som används vid just nybyggnationer. Den är därför också ganska dyr och har en handläggningstid för att få fram.
För enklare projekt räcker det ofta med en karta från kommunens e-tjänst. Dessa skiljer sig åt mellan kommuner. Nedan följer ett exempel med Nacka kommun.
För att hita rätt fungerar google bra. En sökning på "karta situationsplan nacka kommun" ger följande resultat.

Här har Nacka kommun ett beställningsformulär för den "riktiga" nybyggnadskartan. Men även en länkar till andra karttyper.

Vi kan läsa oss till att Nacka kommun använder fyra typer av kartor för bygglov. Från den "bästa" nybyggnadskarta, till enklare kartor för projekt som inte har samma krav. I det enklaste fallet går kartan att hämta själv online.

"Vid nybyggnad av huvudbyggnad eller vid tillbyggnad och nybyggnad av komplementbyggnad som är större än 50 m2 oberoende om området är planlagt eller inte krävs en Nybyggnadskarta, en s.k. Karta A."
Många kommuner har liknande föredömlig information på sin hemsida. Om något är otydligt är det bäst att kontakta en handläggare direkt.
För vårt attefallshus som är väl under 50 m2 och utanför detaljplanelagt område duger alltså karta D.
Exportera underlaget #
Stegen för att exportera ett kartunderlag skiljer sig åt då kommunernas e-tjänster varierar. Det vi vill göra är att skriva ut en kartbild med tomtgränser, rätt skala, och där skalan framgår.

I fallet Nacka kommun gör vi följande:
Hittar vår tomt i verktyget.
Klickar på "kartverktyg" --> "skriv ut".

Vi väljer:
- Format: A3 - kommuner vill ofta ha situationsplaner i det formatet.
- Orientering: Liggande
- Skala 1:400 - som är vanligt för situationsplaner.
Under inställningar väljs:
- Inkludera skalstock: ja
Till sist kontrolleras att hela tomten är med i exportbilden. Sen trycker vi Skriv ut.
Importera underlaget till Ritabygglov.se #
I Ritabygglov skapar du enkelt en ritning. Skapa ett konto på https://app.ritabygglov.se/sign-up. Tryck på knappen Ny ritning.

Fyll i:
- Ritningens namn - "Situationsplan Attefallshus Snömosvägen 12"
- Välj ritningstyp — Situationsplan.
- Ritningens skala — här väljs samma som kartunderlaget, alltså 1:400.
- Ritningens format - här väljs också samma som kartunderlaget. Alltså liggande A3.

Det är viktigt att välja samma format och skala som kartunderlaget. Annars kommer inte skala och mått att stämma överens.
Vi trycker skapa ritning.

För att importera kartunderlaget trycker vi: inställningar & kartunderlag uppe till vänster.

Vi trycker bläddra och väljer kart-exporten från vår dator.
Då kartexporten innehöll en norrpil - den utritade pil som visar väderstrecken - passar vi på att klicka ur "Norrpil" längre ned i inställningsmenyn. Sen stänger vi den.
Vi har nu ett underlag importerat, med överensstämmande skala och väderstreck. Redo att ritas på.

Rita situationsplanen #
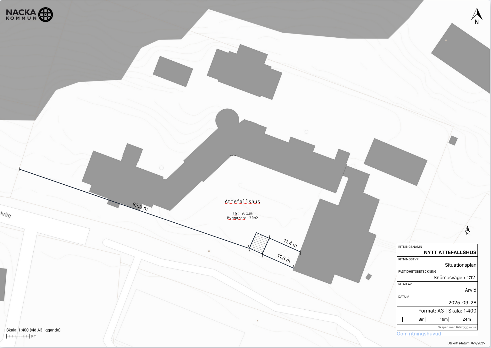
Vi vill nu rita ut vårt attefallshus och införa alla detaljer som krävs för en korrekt situationsplan.
Vår attefallshus är rektangulärt med måtten 5 x 6 meter. Vi väljer därför rektangel-verktyget och klickar ut en sådan.


Genom att markera rektangeln kan vi skriva in måtten. Vi skriver 5 enter i rutan för bred, och sedan 6 enter i rutan för längd.

För att orientera attefallshuset rätt, roterar vi först rektangeln genom att trycka och hålla i det blå rotationshandtaget, och sedan dra med musen. Därefter placerar vi in byggnaden där den ska stå.

För att få med Attefallshusets mått trycker vi på knappen "visa dimensioner".

Vi väljer lämplig linjetjocklek, och ger vårt attefallshus en streckad linjering.
För den aktuella byggnaden i en situationsplan ska mått ritas ut som beskriver byggnadens position på tomten. Vi väljer måttlinje-verktyget. Måttlinjerna ska utgå vinkelrät (90˚) från tomtgränsen.
Vi trycker ut linjens start vid tomtgränsen, och sätter nästa punkt i attefallshusets ena hörn. För att rätta till måttlinjens mått som hamnat uppochned, trycker vi med musen på texten så att den byter sida.
Nacka Kommun har tydliga riktlinjer om att det ska vara tre mått. Vi ritar därför ut två måttlinjer till de andra sidorna sida av tomtgränsen, samt en måttlinje till boningshuset.

Slutligen väljer vi textverktyget och skriver ut "Attefallshus", byggnadens höjd och totalarean.

Fyll i uppgifterna #
I ritningens Ritningshuvud, alltså informationsrutan nere till höger fyller vi in information om ritningen.

Exportera ritningen #
Export av ritningen gör vi genom att klicka på knappen uppe till höger: Exportera till PDF. Ritningen laddas då ned i pdf-format redo att skickas till kommunen.
